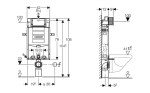
Domov Nábytok Kúpeľňa Sanitárne výrobky Záchody SAPHO - Závesné WC Brilla s podomietkovou nádržkou a tlačidlom Geberit, biela WC-SADA-14

SAPHO - Závesné WC Brilla s podomietkovou nádržkou a tlačidlom Geberit, biela WC-SADA-14

Dostupnosť do 3 dní
Výrobca SAPHO
EAN 8590913861161
672,60 €
Do obchodu
Svet-kupelne.sk

Popis produktu

Water saving - úsporné splachovanie Tvar misy umožňuje efektívne a účinné spláchnutie s menším objemom vody a tým šetrí životné prostredie a náklady za vodu.Úsporné splachovanie je možné použiť pri splachovacom mechanizme (v nádržke WC kombi alebo podomietkovej nádržke pri závesnom WC), ktorého vypúšťací ventil umožňuje nastavenie objemu vody od 4 litrov. V prípade duálneho splachovania u malého tlačidla objem od 3 litrov a väčšieho tlačidla objem od 4,5 litra vody Ean: 8590913861161